Новости
Акции
О компании
Направления деятельности
История
Представители
Мои
заказы
(0)
Личный кабинет
Системы
автоматизированного
проектирования
Программы
HouseCreator+ 1.5
Модуль "Газобетон"
Модуль "Каркас"
Модуль "СИП"
Модуль "Брус"
Модуль "Бревно"
Галерея проектов
Демо версия
Купить
Поддержка
Информация
Вопрос – ответ
Контакты
Меню
Главная страница
»
Галерея
»
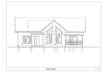
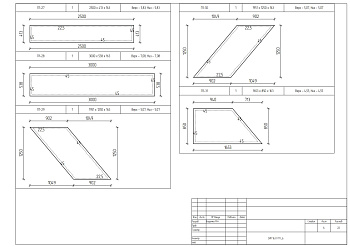
MC-26-11
MC-26-11
Автор проекта: Ващенко Мстислав
Продукты
HouseCreator+ 1.5
Модуль "Газобетон"
Модуль "Каркас"
Модуль "СИП"
Модуль "Брус"
Модуль "Бревно"
Покупателю
Демо версия
Конфиденциальность
Поддержка
Акции
Купить
Галерея проектов
Компания
О нас
Новости
Контакты